Skip to the content
Menu
Close
  • Projekte
  • Profil
  • Kontakt
  • Impressum
  • Datenschutzerklärung
Anne-Sophie Poirier
Anne-Sophie Poirier
Freie Architektin
Menu

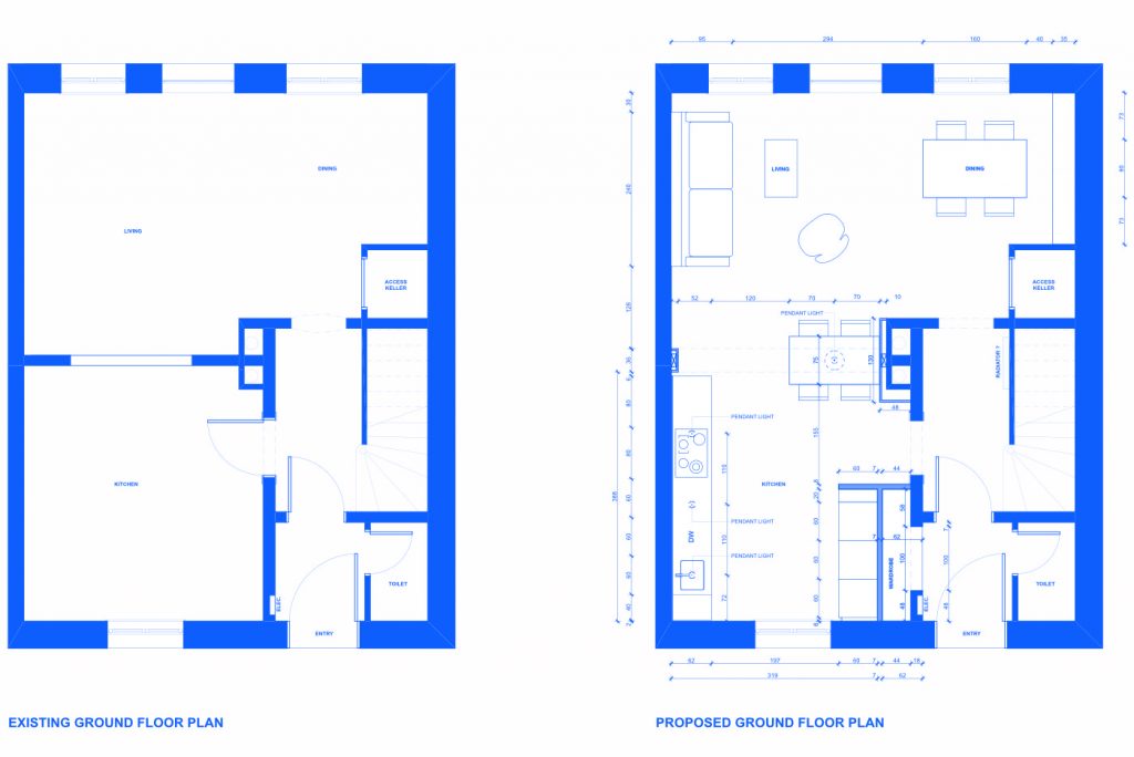
Maison C

Innenarchitektur – Reihenhaus in München, Deutschland

Fertigstellung 2019

Fotografie: Anne-Sophie Poirier

Slowpoke – Cafe

Umbau und Erweiterung –Hawthorn Swimming Clinic

© 2026 Anne-Sophie Poirier

Theme by Anders Norén

  • Projekte
  • Profil
  • Kontakt
  • Impressum
  • Datenschutzerklärung